Dyrektor Miejskiego Centrum Medycznego im. dr. Karola Jonschera w Łodzi ogłasza postępowanie konkursowe na:
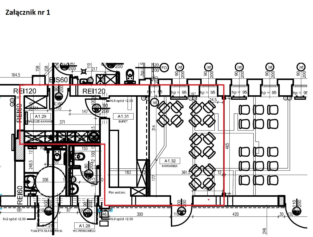
Najem pomieszczeń o pow. 33,00 m2 znajdujących się na I piętrze Pawilonu A Miejskiego Centrum Medycznego im. dr. Karola Jonschera w Łodzi
Złożenie ofert: 07.03.2022 r. do godz. 10:00
Otwarcie ofert: 07.03.2022 r. o godz. 10:15
Oględzin pomieszczeń przeznaczonych do wynajmu można dokonywać w dni robocze w godz. 8.00-15.00, po wcześniejszym uzgodnieniu terminu z pracownikiem Wynajmującego tel. 42 676 18 00
Cena wywoławcza:
20,00 zł netto miesięcznie za m. kw. powierzchni (w tym podatek od nieruchomości)
Miejsce złożenia ofert:
Miejskie Centrum Medyczne im. dr. Karola Jonschera w Łodzi, ul. Milionowa 14, 93-113 Łódź, pawilon C, pokój nr 01 - sekretariat
Miejsce otwarcia ofert:
Miejskie Centrum Medyczne im. dr. Karola Jonschera w Łodzi, ul. Milionowa 14, 93-113 Łódź, pawilon C, pokój nr 20
Informacje uzupełniające
Regulamin postępowania przetargowego w zakresie dysponowania aktywami trwałymi (załącznik nr 1 do Zarządzenia Dyrektora Miejskiego Centrum Medycznego im. dr. Karola Jonschera w Łodzi nr 2/3/2016 z dnia 8 marca 2016r.), zwany dalej: Regulaminem, ma charakter wiążący dla uczestników niniejszego postępowania, można się z nim zapoznać w siedzibie Centrum i na stronie internetowej bip.jonscher.pl
Ogłoszenie zamieszczono na tablicy informacyjnej w siedzibie Miejskiego Centrum Medycznego im. dr. Karola Jonschera w Łodzi oraz na stronie internetowej bip.jonscher.pl w dniu 21.02.2022 r.
BIP 


